ГОСТ Р 56369-2015 Шкафы картотечные металлические. Технические условия
ГОСТ Р 56369-2015 Шкафы картотечные металлические. Технические условия
НАЦИОНАЛЬНЫЙ СТАНДАРТ РОССИЙСКОЙ ФЕДЕРАЦИИ
ШКАФЫ КАРТОТЕЧНЫЕ МЕТАЛЛИЧЕСКИЕ
Технические условия
Filing cabinets. Specifications
МКС 97.140
ОКП 56 0000
Предисловие
1 РАЗРАБОТАН Обществом с ограниченной ответственностью «Промет» (ООО «Промет»)
2 ВНЕСЕН Техническим комитетом по стандартизации ТК 135 «Мебель»
3 УТВЕРЖДЕН И ВВЕДЕН В ДЕЙСТВИЕ Приказом Федерального агентства по техническому регулированию и метрологии от 25 марта 2015 г. N 161-ст
4 ВВЕДЕН ВПЕРВЫЕ
Правила применения настоящего стандарта установлены в ГОСТ Р 1.0-2012 (раздел 8). Информация об изменениях к настоящему стандарту публикуется в ежегодном (по состоянию на 1 января текущего года) информационном указателе «Национальные стандарты», а официальный текст изменений и поправок — в ежемесячном информационном указателе «Национальные стандарты».
1 Область применения
Настоящий стандарт распространяется на картотечные металлические шкафы для хранения документации (далее — картотеки) и устанавливает требования и методы их контроля.
Требования, обеспечивающие безопасность стеллажей металлических при эксплуатации, изложены в 5.2.3-5.2.5.
2 Нормативные ссылки
В настоящем стандарте использованы нормативные ссылки на следующие межгосударственные стандарты:
ГОСТ 9.032-74 Единая система защиты от коррозии и старения. Покрытия лакокрасочные. Группы, технические требования и обозначения
ГОСТ 166-89 Штангенциркули. Технические условия
ГОСТ 9500-84 Динамометры образцовые переносные. Общие технические требования
ГОСТ 12971-67 Таблички прямоугольные для машин и приборов
ГОСТ 16371-93 Мебель. Общие технические условия
ГОСТ 28105-89 Мебель корпусная и столы. Методы испытаний выдвижных ящиков и полуящиков
ГОСТ 30255-2014 Мебель, древесные и полимерные материалы. Метод определения выделения формальдегида и других вредных летучих химических веществ в климатических камерах
3 Термины и определения
3.1 шкаф картотечный металлический (картотека): Шкаф с выдвижными ящиками.
3.2 ящик картотеки: Элемент конструкции, предназначенный для упорядоченного хранения документации.
3.3 направляющая ящика: Элемент конструкции, предназначенный для выдвижения ящика из корпуса картотеки, передающий нагрузку от ящика на несущие элементы корпуса.
3.4 антиопрокидывающее устройство: Элемент конструкции, предназначенный для безопасного использования картотеки, блокирующий открытие более одного ящика одновременно.
3.5 эксплуатационная нагрузка на ящик: Нагрузка на ящик, установленная производителем, позволяющая безопасно эксплуатировать картотеки.
3.6 эксплуатационная нагрузка на картотеку: Суммарная масса груза, который может быть размещен во всех ящиках, позволяющая безопасно эксплуатировать картотеки.
3.7 регулируемые опоры: Поддерживающие устройства для выравнивания корпуса картотеки на неровных поверхностях.
3.8 испытательная платформа: Твердая горизонтальная поверхность (бетонная или иная твердая поверхность), на которую входе испытаний устанавливают картотеку.
3.9 подвесная файловая папка: Устройство для хранения документации, подвешиваемое на стенки или ребра ящика картотеки.
3.10 полезный внутренний объем ящика: Емкость, предназначенная для хранения материалов.
3.11 циклическое устройство: Устройство, предназначенное для циклического открывания, закрывания ящика картотеки.
4 Классификация
4.1 Картотеки классифицируются по функциональному назначению:
— для хранения документов в специализированных подвесных файловых папках и без них, для хранения трудовых книжек, карточек и прочего;
— для хранения принадлежностей и инструментов;
— для хранения чертежей.
4.2 Картотеки классифицируются по конструктивному исполнению:
— стационарные;
— сборные-разборные.
4.3 Классы картотек устанавливают в зависимости от величины эксплуатационной нагрузки на ящик и количества циклов выдвигания/задвигания ящика, которые указаны в таблице 1.
Таблица 1 — Классификация шкафов картотечных
1 А30/40 — картотека с эксплуатационной нагрузкой на ящик 30 кг и количеством циклов выдвигания/задвигания ящика не менее 40 000.
2 У30/80 — картотека с эксплуатационной нагрузкой на ящик 30 кг и количеством циклов выдвигания/задвигания ящика не менее 80 000.
5 Технические требования
5.1.1 Картотеки должны соответствовать требованиям настоящего стандарта и технической документации, утвержденной в установленном порядке изготовителем.
5.1.2 Габаритные размеры картотек устанавливают в технической документации.
5.1.3 Предельные отклонения от габаритных размеров картотек указаны в таблице 2.
Таблица 2
5.1.4 Конструкция картотеки в запертом состоянии должна обеспечивать защиту от несанкционированного доступа с использованием ручного слесарного инструмента. В картотеке должен быть установлен замок с количеством не менее 10 000 комбинаций.
5.1.5 Толщина металла основных несущих элементов картотеки должна быть не менее 0,8 мм.
5.1.6 Элементы картотек, выходящие на поверхность, не должны иметь острых углов и кромок.
5.1.7 Металлические поверхности изделий должны иметь защитное или защитно-декоративное покрытие в соответствии с ГОСТ 9.032.
Для изделий, выполненных из коррозионно-стойких сталей, допускается не наносить защитно-декоративное покрытие.
5.1.8 Картотеки, поставляемые потребителю в разобранном виде, должны быть изготовлены с точностью, обеспечивающей сборку и разборку без дополнительной подгонки.
5.1.9 Картотеки должны иметь отверстия в боковых и задних стенках для скрепления между собой в блоки либо крепления к стене.
5.1.10 Картотеки должны быть оснащены устройствами для размещения в ящиках подвесных файловых папок, разделителей, прижимных планок.
5.1.11 Замки и запирающие механизмы должны работать плавно и без заеданий.
5.2 Требования к материалам и комплектующим изделиям
5.2.1 В производстве картотек должны использоваться материалы и комплектующие, безопасность которых подтверждена в установленном порядке сертификатом (декларацией) соответствия и (или) протоколом испытаний.
5.2.2 Элементы картотек рекомендуется изготовлять из стали.
5.2.3 При изготовлении картотек не допускается применять покрытие с содержанием свинца и триглицедилизоцианоуратов.
5.2.4 При эксплуатации изделий не должны выделяться химические вещества, относящиеся к первому классу опасности, а содержание остальных веществ не должно превышать допустимые уровни миграции в воздушную среду, установленные в ТР ТС 025/2012 «О безопасности мебельной продукции». При выделении из изделий нескольких вредных химических веществ, обладающих суммарным действием, сумма отношений концентрации к их предельно допустимой концентрации не должна превышать единицу. Продукция не должна создавать в помещении специфического запаха более 2 баллов.
5.2.5 Контролируемые механические показатели и их значения, обеспечивающие требования безопасности при эксплуатации картотек:
— фактическая нагрузка ящиков для испытаний Q
— по формуле (1);
— усилие выдвигания ящика — не более 50 Н;
— устойчивость картотеки под действием статической горизонтальной силы Р — 44 Н;
— прочность корпуса: вес ненагруженной картотеки и высота падения (см. таблицу 3);
— циклы нагружения (выдвигания/задвигания ящика) для данного класса картотеки — по таблице 1;
— устройство для циклического испытания ящика: скорость — (12±4) цикл/мин.;
— блокирующее устройство: статическая горизонтальная сила — 250 Н.
5.3.1 Картотеки при эксплуатации должны маркироваться металлической табличкой размерами не более 100х50 мм по ГОСТ 12971.
5.3.2 Табличка размещается на видном месте корпуса или ящика картотеки и должна быть четкой и содержать:
— наименование фирмы-изготовителя или поставщика;
— класс картотеки;
— эксплуатационные нагрузки на полку и секцию стеллажа;
— данные по электробезопасности (при необходимости);
— дату выпуска.
5.4.1 Упаковка должна обеспечивать сохранность картотек и составных частей при их транспортировании и хранении в течение сроков, установленных производителем в товаросопроводительной документации.
5.4.2 Упаковка не должна иметь острых выступающих частей, углов, кромок и поверхностей с неровностями, которые могут нанести повреждения транспортным средствам, их внутреннему оборудованию, упаковке других грузовых мест и обслуживающему персоналу.
6 Правила приемки
6.1 Картотеки предъявляют к приемке партиями. Партией считают количество изделий, оформленное одним документом (договором).
6.2 Картотеки подвергают приемо-сдаточным испытаниям в целях подтверждения соответствия (декларирования).
6.3 При приемо-сдаточных испытаниях не реже одного раза в месяц контролируют внешний вид картотек, а также целостность упаковки.
6.4 При испытании в целях подтверждения соответствия (декларирования) проверяют соответствие картотек требованиям настоящего стандарта. Состав и комплект документов для испытаний указаны в приложении Д.
7 Методы контроля
7.1 Размеры картотек проверяют универсальными измерительными инструментами по ГОСТ 166 и ГОСТ 9500. В картотеках, поставляемых в разобранном виде, проверяют размеры деталей и (или) элементов. Габаритные размеры измеряют с погрешностью ±1 мм, размеры деталей — с погрешностью ±0,1 мм.
7.2 Возможность сборки без дополнительной подгонки определяют контрольной сборкой изделия. Внешний вид, наличие защитного и защитно-декоративного покрытия поверхности, требования к фурнитуре контролируют визуально (осмотром изделия) без применения приборов.
7.3 Материалы, применяемые при изготовлении картотек, должны иметь сертификаты (декларации) соответствия.
7.4 Количество комбинаций замков, применяемых в картотеках, проверяют на основе сертификатов соответствия производителя.
7.5 Уровни летучих химических веществ, выделяющихся при эксплуатации картотек в воздушную среду, определяют по ГОСТ 30255, действующим нормативным документам, в том числе методикам определения концентрации конкретных химических веществ.
7.6.1 Испытания могут проводиться в любой последовательности.
Количество и порядок отбора образцов для испытаний — по ГОСТ 16371.
Картотеки, имеющие сборно-разборную конструкцию, представляют на испытание в собранном виде в соответствии с конструкторской документацией и инструкцией по сборке.
Если конструкцией предусмотрена установка картотечных шкафов друг на друга, испытания проводятся в максимальном по нагрузке и устойчивости варианте в соответствии с конструкторской документацией и инструкцией по сборке.
7.6.2 Требования к оборудованию
Допустимые отклонения для испытательного и измерительного оборудования и нагрузочных устройств должны быть:
— по массе, силе, скорости и времени — ±1%;
— по линейным измерениям — ±1,5 мм;
— по углам — ±5°;
— по уровню полов — в пределах 2 мм на один метр;
— требования по циклам — по ГОСТ 16371.
Нагрузка для проведения испытаний рассчитывается по формуле:
где Q
— фактическая нагрузка для проведения испытаний;
V
— полезный внутренний объем ящика;
r — плотность нагрузочного материала.
Материал для нагрузки должен иметь плотность (672±80) кг/м
. Типичным материалом для создания нагрузки может быть копировальная бумага плотностью 721 кг/м
или древесно-стружечная плита.
Требования к нагрузке для ящиков с дном, воспринимающим нагрузку, указаны в приложении Б. Требования к нагрузке для ящиков с нагрузкой на подвесных файловых папках указаны в приложении В.
7.6.4 Требования к установке картотек для проведения испытаний
7.6.4.1 Образец должен быть помещен на испытательную платформу и выровнен или установлен в соответствии с инструкциями производителя. Если картотека имеет регулируемые опоры, то они должны быть установлены в среднем положении. Опоры, ножки или колеса должны быть блокированы препятствием или другим ограничивающим устройством высотой в 13 мм, прикрепленным к испытательной платформе. Данное устройство должно препятствовать скольжению, но не защищать от опрокидывания. Если имеются колеса, то они должны быть выставлены в наименее устойчивое положение (см. рисунок 1).
Рисунок 1 — Установка картотек для проведения испытаний

Рисунок 1 — Установка картотек для проведения испытаний
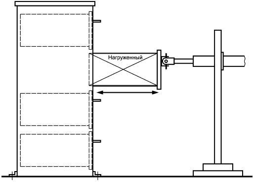
7.7 Метод испытания на устойчивость картотеки
7.7.1 Для испытаний выбирают ящик, который после приложения нагрузки, находясь в полностью выдвинутом положении, будет обеспечивать наименее устойчивое положение. Если имеется более одного ящика того же размера, то нагружается самый верхний. Фактическая нагрузка для проведения испытаний рассчитывается по формуле (1). Требования к фактической нагрузке для ящиков с дном, воспринимающим нагрузку, указаны в приложении Б. Требования к фактической нагрузке для ящиков с подвесными файловыми папками указаны в приложении В.
Все остальные ящики должны оставаться закрытыми и ненагруженными.
7.7.2 Нагруженный ящик должен быть полностью выдвинут.
К верхнему ящику в горизонтальном направлении в сторону открытия, параллельно направлению хода ящика картотеки, необходимо приложить силу 44 Н (см. рисунок 2). Если данный ящик картотеки не является ящиком, определенным согласно 7.7.2, то он должен быть зафиксирован в закрытом положении.
7.7.3 Картотека считается прошедшей испытания, если не произошло ее опрокидывания.
7.7.4 Результаты испытаний оформляют протоколом (см. приложение А).
Рисунок 2 — Испытание картотек на устойчивость

Рисунок 2 — Испытание картотек на устойчивость
7.8 Метод испытания на устойчивость картотек при установке друг на друга
7.8.1 Для испытания выбирают два ящика, которые после приложения нагрузки, находясь в полностью выдвинутом положении, будут обеспечивать наименее устойчивое положение. Эти ящики нагружаются фактической нагрузкой Q
. Требования к фактической нагрузке для ящиков с дном, воспринимающим нагрузку, указаны в приложении Б. Требования к фактической нагрузке для ящиков с подвесными файловыми папками указаны в приложении В.
Остальные ящики должны оставаться закрытыми и ненагруженными.
7.8.2 Два нагруженных ящика одновременно плавно открываются до достижения полностью выдвинутого положения (см. рисунок 3).
Рисунок 3 — Испытание на устойчивость картотек при установке друг на друга

Рисунок 3 — Испытание на устойчивость картотек при установке друг на друга
7.8.3 Картотеки при установке друг на друга считаются прошедшими испытания, если не произошло их опрокидывания, и не прошедшими испытания, если открытые ящики не позволяют картотеке упасть из-за контакта с испытательной платформой.
7.8.4 Результаты испытаний оформляют протоколом (см. приложение А).
7.9 Метод испытания картотек на прочность
Если картотека имеет регулируемые опоры, то они должны быть установлены в среднем положении. Данное испытание не применяют к картотекам с колесами.
7.9.1 Определяется вес ненагруженной картотеки.
7.9.2 Картотека должна быть установлена согласно 7.6.5. После этого одну боковую стенку картотеки устанавливают на ребро и поднимают на высоту падения, значение которой указано в таблице 3, в соответствии с весом ненагруженной картотеки, затем отпускают и картотека падает на испытательную платформу (см. рисунок 4).
Таблица 3 — Высота падения для картотечных шкафов
Рисунок 4 — Испытание картотек на прочность

Рисунок 4 — Испытание картотек на прочность
Испытания повторяют для другой боковой стороны картотеки.
7.9.3 Картотека считается прошедшей испытание, если после испытания нет следов пластической деформации, все ящики работают в установленном режиме и отвечают требованиям на тянущее усилие согласно 7.12.
7.9.4 Результаты испытаний оформляют протоколом (см. приложение А).
7.10 Метод испытания на ресурс направляющих ящика картотеки циклическим устройством
Картотека должна быть установлена согласно 7.6.5.
Фактическая нагрузка для проведения испытаний рассчитывается по формуле (1). Требования к фактической нагрузке для ящиков с дном, воспринимающим нагрузку, указаны в приложении Б. Требования к фактической нагрузке для ящиков с подвесными файловыми папками указаны в приложении В.
7.10.1 Циклическое устройство должно быть присоединено к центру ручки ящика. Если ящик оснащен боковыми ручками, то циклическое устройство должно быть присоединено к центру одной из ручек. Циклическое устройство необходимо настроить таким образом, чтобы ящик картотеки двигался в пределах от 0-6 мм от закрытого положения до 0-6 мм полностью выдвинутого положения и осуществлялся возврат в исходное состояние. Это движение должно составлять один цикл. Циклическое устройство не должно облегчать или добавлять вертикальную или горизонтальную нагрузки к направляющим (см. рисунок 5).
Рисунок 5 — Циклическое испытание раздвижного элемента

Рисунок 5 — Циклическое испытание раздвижного элемента
7.10.2 Самый большой ящик картотеки должен быть подвергнут 40 000 или 80 000 циклам открытия/закрытия в соответствии с таблицей 1.
7.10.3 После окончания циклов открытия/закрытия выполняются испытания на тянущее усилие согласно 7.12.
7.10.4 Если ящик картотеки имеет устройство блокировки, то выполняется испытание блокировки согласно 7.11.
7.10.5 Картотека считается прошедшей испытание, если после испытания отсутствует пластическая деформация, все ящики работают в установленном режиме и отвечают требованиям 7.11, 7.12.
7.10.6 Результаты испытаний оформляют протоколом (см. приложение А).
7.11 Метод испытания на прочность блокирующего устройства
Картотека должна быть установлена согласно 7.6.5.
Фактическая нагрузка для проведения испытаний рассчитывается по формуле (1). Требования к фактической нагрузке для ящиков с дном, воспринимающим нагрузку, указаны в приложении Б. Требования к фактической нагрузке для ящиков с подвесными файловыми папками указаны в приложении В.
7.11.1 Ящик должен быть полностью выдвинут, и к центру ручки остальных ящиков должна быть приложена сила в 250 Н — на каждый ящик 5 раз (см. рисунок 6).
Действия по пункту 7.11.1 повторяются до тех пор, пока все возможные комбинации ящиков не будут протестированы.
7.11.2 Картотека считается прошедшей испытание, если после испытания система блокировки сохраняет свою функциональность, работает плавно и без заеданий.
Результаты испытаний оформляют протоколом (см. приложение А).
Рисунок 6 — Испытание на прочность блокирующего устройства

Рисунок 6 — Испытание на прочность блокирующего устройства
7.12 Метод испытания на тянущее усилие
Картотека должна быть установлена согласно 7.6.5.
Фактическая нагрузка для проведения испытаний рассчитывается по формуле (1). Требования к фактической нагрузке для ящиков с дном, воспринимающим нагрузку, указаны в приложении Б. Требования к фактической нагрузке для ящиков с подвесными файловыми папками указаны в приложении В.
7.12.1 Ящики должны быть подвергнуты испытаниям на выдвижение в количестве 100 циклов. Один цикл включает в себя ход в пределах от 0-6 мм от закрытого положения до 0-6 мм полностью выдвинутого положения и возврат в исходное состояние. При использовании шарикоподшипниковых направляющих ящик картотеки один раз полностью открывается и полностью закрывается, для обеспечения перенастройки направляющих, до проведения испытания на тянущее усилие.
7.12.2 Динамометр или другое измерительное устройство должно быть прикреплено к центру ручки ящика картотеки (см. рисунок 7).
Данное испытание проводят по ГОСТ 28105 со значениями контролируемых показателей, указанных в 5.3.
7.12.3 Картотеку считают выдержавшей испытания, если полученные при испытаниях механические показатели будут соответствовать нормам, указанным в 5.3.
Результаты испытаний оформляют протоколом (см. приложение А).
Рисунок 7 — Испытание на тянущее усилие

Рисунок 7 — Испытание на тянущее усилие
8 Транспортирование и хранение
8.1 Картотеки можно перевозить в упаковке изготовителя в горизонтальном и вертикальном положении всеми видами крытого транспорта или в контейнерах.
8.2 Картотеки должны храниться в упаковке изготовителя в крытых помещениях отправителя (получателя) при относительной влажности воздуха от 45% до 70%.
9 Гарантии изготовителя
9.1 Изготовитель гарантирует соответствие картотек требованиям настоящего стандарта при соблюдении условий транспортирования, хранения, сборки (картотек, поставляемых в разобранном виде), эксплуатации.
9.2 Картотеки, поставляемые потребителю в разобранном виде, должны быть изготовлены с точностью, обеспечивающей сборку и разборку без дополнительной подгонки.
9.3 Гарантийный срок эксплуатации картотек — 12 мес.
Приложение А (рекомендуемое). Типовая форма протокола испытаний
Приложение Б (обязательное). Требования к нагрузке для ящиков с дном, воспринимающим нагрузку
Нагрузочный материал должен быть равномерно распределен от передней стороны к задней, а также от одной стороны к другой на дне ящика. В качестве нагрузочных материалов могут также использоваться жесткие материалы (например, сталь, пенополистирол и т.д.). Для ящиков, у которых глубина больше ширины (см. рисунок 8), для ящиков, у которых ширина больше глубины (см. рисунок 9).
Рисунок 8 — Конфигурация нагрузки для ящиков (глубина больше ширины) с дном, воспринимающим нагрузку

Рисунок 8 — Конфигурация нагрузки для ящиков (глубина больше ширины) с дном, воспринимающим нагрузку
Рисунок 9 — Конфигурация нагрузки для ящиков (ширина больше глубины) с дном

Рисунок 9 — Конфигурация нагрузки для ящиков (ширина больше глубины) с дном
Приложение В (обязательное). Требования к нагрузке для ящиков с нагрузкой на подвесных файловых папках
Нагрузочный материал должен быть помещен в подвесных файловых папках соответствующего размера. В качестве нагрузочных материалов могут также использоваться жесткие материалы (например, сталь, пенополистирол и т.д.). Для ящиков, у которых глубина больше ширины (см. рисунок 10), для ящиков, у которых ширина больше глубины (см. рисунок 11).
Рисунок 10 — Конфигурация нагрузки для ящиков (глубина больше ширины) без дна

Рисунок 10 — Конфигурация нагрузки для ящиков (глубина больше ширины) без дна
Рисунок 11 — Конфигурация нагрузки для ящиков (ширина больше глубины) без дна

Рисунок 11 — Конфигурация нагрузки для ящиков (ширина больше глубины) без дна
Примечание — Если ящики могут поддерживать нагрузку как на дне, так и на подвесных файловых папках, то нагружение проводят согласно приложению Б.
Приложение Г (обязательное). Указания по эксплуатации
Г.1 Картотеки должны быть оснащены антиопрокидывающим устройством, препятствующим открыванию более одного ящика одновременно.
Г.2 Если конструкцией предусмотрена возможность установки картотек друг на друга, то должно быть обеспечено прочное крепление их между собой. При этом общая высота конструкции — не более 2500 мм.
Г.3 Загрузку ящиков следует производить в последовательности от нижнего к верхнему. Более тяжелые грузы необходимо располагать в нижних ящиках.
Г.4 Для устойчивого положения картотеки необходимо установить на твердой горизонтальной поверхности. Отклонение пола от горизонтали — не более 2 мм на один погонный метр. Для выравнивания картотеки допускается использовать подкладки из металла.
Г.5 К работам по сборке, обслуживанию и эксплуатации картотек допускаются только лица, изучившие требования руководства по эксплуатации, инструкции по сборке и технике безопасности.
Г.6 Картотеки должны быть установлены в соответствии с инструкцией по монтажу и инструкцией по эксплуатации изготовителя.
Приложение Д (рекомендуемое). Состав и требования к технической документации для проведения испытаний карточных шкафов
Д.1 Состав технической документации для испытаний:
— технические условия;
— руководство по эксплуатации;
— инструкция по сборке;
— комплектовочные ведомости;
— конструкторская документация.
Д.2 Требования к технической документации
На каждой странице всех документов, предоставленных для проведения испытаний, должны быть проставлены дата и наименование изготовителя (или наименование и статус заявителя на испытания).
Чертежи на образец для испытания, выполненные в соответствии с ЕСКД, где указаны:
— вес образца, наружные и внутренние размеры и допуски;
— горизонтальные и вертикальные поперечные сечения;
— описание возможных опций, например, установка бокового ограничителя или задних стенок.
Спецификация на материалы конструкции, если они не указаны в чертежах.