ГОСТ 11015-93 (ИСО 5970-79) Столы ученические. Типы и функциональные размеры (с Изменением N 1)
ГОСТ 11015-93 (ИСО 5970-79) Столы ученические. Типы и функциональные размеры (с Изменением N 1)
ГОСТ 11015-93
(ИСО 5970-79)
Группа К25
МЕЖГОСУДАРСТВЕННЫЙ СТАНДАРТ
СТОЛЫ УЧЕНИЧЕСКИЕ
Типы и функциональные размеры
Desks for pupils.
Types and functional dimensions
Предисловие
1 РАЗРАБОТАН Российской Федерацией
ВНЕСЕН Техническим секретариатом Межгосударственного совета по стандартизации, метрологии и сертификации
2 ПРИНЯТ Межгосударственным советом по стандартизации, метрологии и сертификации 21 октября 1993 г.
За принятие проголосовали:
3 В настоящем стандарте учтены все показатели и требования международного стандарта ИСО 5970-79 «Мебель. Столы и стулья для учебных заведений. Функциональные размеры» в части требований к ростовым номерам 1-6.
4 ВЗАМЕН ГОСТ 11015-86
ВНЕСЕНО Изменение N 1, утвержденное и введенное в действие Приказом Росстандарта от 21.05.2013 N 115-ст c 01.11.2013
Изменение N 1 внесено изготовителем базы данных по тексту ИУС N 8, 2013 год
Настоящий стандарт распространяется на ученические столы, используемые в комплекте с ученическими стульями по ГОСТ 11016 для оборудования рабочих мест учащихся в классах и учебных кабинетах, и устанавливает их типы и функциональные размеры.
Обязательные требования, обеспечивающие безопасность для здоровья учащихся, изложены в 2.1, 2.2, 2.3, 2.5, 2.6, 2.7.
1. ТИПЫ
1.1 Ученические столы должны изготовляться одноместными или двухместными двух типов:
I — столы с постоянными параметрами;
II — столы с регулируемыми параметрами
2. ФУНКЦИОНАЛЬНЫЕ РАЗМЕРЫ
2.1 Ученические столы должны изготовляться семи номеров и иметь цветовую маркировку в соответствии с таблицей 1.
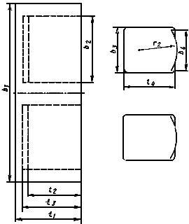
2.2 Функциональные размеры ученических столов должны соответствовать указанным в табл.2 и на чертеже.
Чертеж
2.1, 2.2. (Измененная редакция, Изм. N 1).
2.2.1 По требованию потребителя допускается для номеров 3, 4, 5, 6 изготовление одноместных столов с длиной рабочей плоскости 700 мм и двухместных столов с длиной рабочей плоскости 1300 мм.
2.3. Крышка стола должна быть горизонтальной или иметь приспособления для установки ее горизонтально и под углом от 7 до 16°. При переводе крышки в наклонное положение высота края стола, обращенного к ученику, не должна уменьшаться более чем на 10 мм.
2.4. При наличии в ученических столах полки высота ниши должна быть не менее 60 мм.
2.5 Столы типа II должны регулироваться по высоте:
на пять номеров — 3-7;
на три номера — 3-5 и 5-7.
Высота рабочей плоскости
и расстояние от пола до нижней кромки элементов, выступающих под крышкой стола у ее края (высота пространства для ног)
, должны изменяться в соответствии с таблицей 2. Остальные размеры столов должны соответствовать:
в столах номеров 3-7 и 5-7 — размерам для стола номера 7 (таблица 2);
в столах номеров 3-5 — размерам для стола номера 5 (таблица 2).
2.6 В столах с крышками, устанавливаемыми в двух положениях, — горизонтальном и наклонном, должны быть предусмотрены места для хранения ручек и карандашей. Минимальные размеры углубления для ручек и карандашей 115
45
8 мм (длина
ширина
глубина) или отверстие под стаканчик диаметром не менее 55 мм.
Расстояние от кромки крышки со стороны сидящего до углубления должно быть не менее 380 мм.
Столы с горизонтальными крышками допускается изготовлять без углублений для ручки и карандаша.
2.5, 2.6 (Измененная редакция, Изм. N 1).
2.7 Углы крышек стола должны быть притуплены (зашлифованы) или иметь в плане скругление радиусом 10-30 мм.
ПРИЛОЖЕНИЕ (рекомендуемое). МЕБЕЛЬ, СТОЛЫ И СТУЛЬЯ ДЛЯ УЧЕБНЫХ ЗАВЕДЕНИЙ. ФУНКЦИОНАЛЬНЫЕ РАЗМЕРЫ ИСО 5970-79
0. Введение
Настоящий международный стандарт разрабатывался в соответствии с принципом — стулья и столы должны быть подобраны таким образом, чтобы способствовать правильному положению корпуса при работе за столом у тех лиц, которые пользуются этой мебелью в учебных заведениях. Все функциональные размеры в стандарте основаны на результатах, полученных с помощью антропометрических исследований. Выполнение норм настоящего международного стандарта гарантирует при использовании правильно подобранных столов и стульев удобство расположения на сиденье и в то же время позволяет создателям и изготовителям мебели приспособиться к техническим условиям и локальной экономике в соответствии с теми требованиями, которые выдвигают условия обучения в каждой отдельной стране.
Практически для любого роста можно подобрать соответствующую мебель из семи предлагаемых типоразмеров, однако необходима некоторая адаптация для тех лиц, у которых телосложение существенно отличается от средних норм. Требуется тщательно изучить национальные особенности населения для того, чтобы из имеющихся семи типоразмеров мебели выбрать наиболее подходящую для использования в местных школах.
Семь типоразмеров комплектов в виде столов и стульев, предлагаемые настоящим международным стандартом, могут удовлетворить потребности любого учебного заведения (кроме специальных).
Столы средних типоразмеров могут быть также использованы в качестве рабочих плоскостей в тех случаях, когда маленькие ученики работают стоя, более высокие столы используются при аналогичной работе старших учащихся; вся гамма высот создает обширные возможности для использования мебели, разработанной в соответствии с настоящим международным стандартом.
1. Объект и область применения
Настоящий международный стандарт определяет функциональные базовые размеры столов и стульев, используемых в учебных заведениях общего типа. Он не удовлетворяет частным требованиям, выдвигаемым специальными учебными заведениями, или требованиям, предъявляемым к регулируемой мебели. Настоящий международный стандарт не касается материалов, концепций, производства и качества.
2. Размеры
Размеры стульев даны в таблице 1, а размеры столов в таблице 2. Справочные размеры обозначены на рисунке 1 (вид сбоку) и рисунке 2 (вид сверху)*.
__________________
* Допуски, обозначенные в таблице 1 и таблице 2, не являются производственными допусками, они лишь определяют возможные интервалы для функциональных размеров.
Приведенные в таблице 2 минимальная ширина
и минимальная длина
крышки стола выбираются по данным для одноместных или двухместных столов в соответствии со спецификой их использования.
Свободная зона для ног, определяемая размерами
должна строго соблюдаться во всех столах, предназначенных для трудовой деятельности в сидячем положении.
Все ящики или отделения под верхней крышкой стола должны быть размещены таким образом, чтобы обеспечить ногам свободную зону, равную минимальным оговоренным в стандарте размерам.
Примечания:
* Для типоразмера 0 определяются только цвет и высота сиденья.
** Высота
измеряется от наиболее высокой точки сиденья в плане на средней линии.
*** Размер
измеряется на средней линии сиденья в плане, это расстояние от края передней ножки стула до перпендикуляра, опущенного из контрольной точки
.
![]()
— точка на спинке стула, максимально выступающая вперед.
Должна быть обеспечена свобода движений сидящего в рабочем положении.
и
измеряются на средней линии сиденья в плане от наиболее низкой точки на поверхности сиденья.
Верхние и нижние края спинки стула должны быть хорошо сглажены.
![]()
— радиус закругления поверхности сиденья вниз. Необходимо, чтобы кривая имела точную форму дуги окружности.
![]()
— радиус закругления спинки в плане.
![]()
— угол наклона сиденья должен быть 4° максимум. Поверхность сиденья может быть плоской или иметь углубление. Углубление должно занимать задние 2/3 сиденья. Самая глубокая часть его должна находиться в задней части эффективной глубины сиденья, ближе к краю сиденья.
![]()
— угол, образованный горизонтальной линией сиденья и наклонной спинкой стула, или угол между верхней частью спинки стула, определяемый высотой
и нижней частью спинки, размер
— наиболее выступающая точка спинки соответствует краю сиденья по его средней линии. Профиль спинки стула между функциональными размерами
и w не определен.
Размеры столов, мм
Пpимечания
* Для типоразмера 0 определяются только цвет и высота сиденья.
**
— поверхность крышки стола, определяемая в данном международном стандарте, горизонтальная. Однако, если поверхность стола необходимо наклонить, то рекомендуется угол наклона крышки стола, равный 16° по отношению к горизонтали. При этом край крышки стола, расположенный со стороны ученика, должен быть размещен на такой же высоте, на которой устанавливается крышка стола, расположенная горизонтально.
***
— если свободное пространство размещается в этой зоне, то его высота должна быть минимум 60 мм.
Таблица 2 дает предпочтительные размеры минимальной длины и минимальной ширины крышки стола. С точки зрения гармонии рекомендуется использовать эти величины. Если возникает необходимость в использовании размеров, отличающихся от
и
, то целесообразно использовать следующие модули для увеличения размеров:
размер
от 450 до 800 мм: увеличение на 50 мм
от 800 мм до 2000 мм: увеличение на 100 мм
размер
от 450 мм до 1200 мм: увеличение на 50 мм.
Рисунок 1

Рисунок 2

Рисунок 2
3. Соотношения между стулом и столом
Общеизвестно, что ученики, находясь в положении сидя, могут занимать разнообразные позы. Для того, чтобы решить вопрос о соответствии между стулом и столом, необходимо выбрать удобное положение и проверить семь параметров в соответствии с рисунком 3. На нем показано правильное положение учащегося, сидящего за столом, которое удовлетворяет одновременно всем необходимым параметрам.
Метод оценки соответствия между стулом и столом
Рисунок 3

А — согнутые в коленях ноги учащегося (в обуви) должны спокойно лежать на плоской поверхности пола;
В — должно быть достаточное пространство между бедрами и нижней частью стола;
С — не должно быть никакого давления на передний край стула, между поверхностью сиденья и бедром;
D — высота стола должна быть выбрана таким образом, чтобы локти сидящего приближались к такому же уровню по отношению к переднему краю крышки стола, на каком они находятся, когда кисти рук опущены вертикально вниз;
Е — спинка стула должна крепко поддерживать спину сидящего в поясничной области и нижней части лопаток;
F — должно быть свободное пространство между задней частью ног и передним краем сиденья;
G — должно быть предусмотрено свободное пространство между опорой лопаток и сиденьем для обеспечения свободного движения на стуле.
4. Маркировка
Стулья и столы, соответствующие настоящему международному стандарту, должны снабжаться несмываемой наклейкой, указывающей справочный номер или код цвета, или то и другое.
